trente-six
Saint-Maurice
2025
Concours pour la nouvelle Haute Ecole Pédagogique du Valais à Saint-Maurice
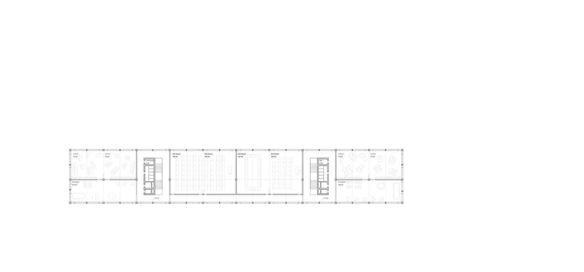
Le programme de la HEP se répartit entre trois bâtiments : le nouveau bâtiment, le bâtiment cargo et la halle à marchandises. Le nouveau bâtiment accueille l’enseignement, les grandes salles, la salle polyvalente, une partie de l’administration et du personnel. Le reste de l’administration et des locaux du personnel est situé dans le bâtiment cargo. La halle à marchandises abrite la cafétéria.
Cette répartition optimise le bâti existant tout en favorisant la mixité programmatique. Le nouveau bâtiment, organisé autour de deux noyaux techniques, permet une grande flexibilité d’aménagement grâce à sa trame régulière. Les salles d’enseignement sont orientées à l’est, à l’abri des nuisances ferroviaires. L’accueil se situe dans l’appentis, espace tampon semi-public. La salle de mouvement et l’auditoire, situés en sous-sol, s’intègrent spatialement au rez-de-chaussée grâce à leur hauteur.
Dans le bâtiment cargo, l’intervention est minimale pour préserver la structure classée, en adaptant les combles et en intégrant un ascenseur. La halle à marchandises est restaurée dans son esprit d’origine, la cafétéria prenant place dans une boîte autonome à l’intérieur. L’accès PMR est assuré dans les deux bâtiments par des rampes.
Le nouveau volume, élancé et léger, combine une structure en bois sur un socle en béton. Un radier général répartit les charges au sol, et des sommiers en béton précontraint supportent les grandes portées du rez-de-chaussée. Les planchers et l’appentis sont en bois préfabriqué, avec hourdis en terre stabilisée. Les cadres et poteaux en bois lamellé-collé assurent une modularité d’aménagement.
Deux noyaux en béton assurent la stabilité latérale en cas de séisme, renforcée par des dalles de liaison. La façade ventilée en bois associe briques, métal et matériaux réemployés comme des conduits de ventilation aplatis. Les fenêtres, inspirées des bow-windows, allient ventilation naturelle et confort d’usage. Côté voies, des fenêtres à caisson protègent contre les risques d'explosion du trafic ferroviaire.
Le projet mise sur des matériaux locaux et de réemploi (terre comprimée, béton recyclé, dalles réutilisées), avec un assemblage rapide en chantier. Toitures végétalisées, revêtements perméables et espaces verts favorisent la biodiversité et le confort des usagers.
en collaboration avec
Benjamin Pannatier, Valerio Santoni
et Meylan Ingénieurs SA
projet non-classé
























